Pienen elementtirakenteisen saunatuvan valmistusta ja pystytystä.

IMG_eleman
Tuvan seinät tehdään elementeiksi verstashallilla Kuopiossa.
IMG_20250707_074755
Valmiit elementit lastataan kuorma-autoon, kuljetettavaksi tontille.
ressutettu_sauna
WhatsApp Image 2025-09-09 at 09.59.42
Mökin runko nousee nopeasti, valmiiden perustusten päälle.
20250914_174506

Pian mökki onkin jo vesikate päällä, eikä sateetkaan enää haittaa.

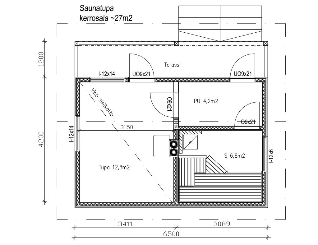
pohjaluonnos_saunamökki_AN

Saunatuvan pohjaluonnos

Teemme piharakennuksia yms. myös mittatoiveittesi mukaan.